隣がずっと空き地だったのですが、ついにマンションが建ち、我が家側はマンション駐車場になりました。
もう隣家が建つ心配は無くなったことで、

5年間使わず放置していた寝室の勝手口ドアを活かすチャンス!
そこで今回、サンルームを作ることにしました。
と言っても「ここで優雅にお茶を…」という高尚な目的ではなく、完全に“洗濯物を干すための実用サンルーム”です。
今回のサンルームDIYでは、後付けサンルームの費用や構造、ポリカ波板の屋根、トリプルガラスの窓設置など、実際の工程と注意点をまとめています。


ちなみに5階建てのマンションが建ちましたが、我が家の採光はマンション側ではなく南東向きに面した道路側なので問題ナシです。
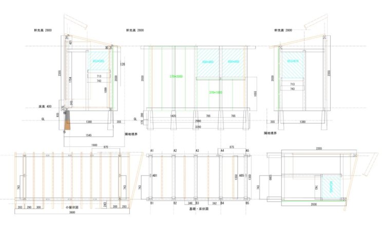
サンルームのサイズと仕様
・壁から隣地境界まで:1.9m
・サンルーム奥行き:1.55m
・芯々:1.38m
・長さ:3m
・屋根勾配:3寸
・室内高さ:壁側2.2m → 軒先1.9m
家の壁に合わせると長さは4m弱までできましたが、余っていた外壁材を無駄なく使うため3mに決定しました。
図面はこちら↓

活用したい余った材料
・家を建てる時に余った外壁材(3m×4枚)
・子供部屋のFIX窓を片開き窓にした際に出たトリプルガラス2枚
・サッシ屋さんからもらっていたアクリルガラス(1cm厚で600×1500くらい)
構造材の発注と刻み作業(5~7月)
家を建てた時にお世話になった建材屋さんに久々にメールし、下記の材料を発注。
・構造材にする9㎝角の材木
・4.5㎝角の屋根垂木
・OSB合板
・基礎ブロック(60㎝)
・胴縁用木材
→合計11万3千円



刻みは土日に駐車場でコツコツ。6~7月の2カ月かけて進めました。


基礎ブロックの設置(7月後半)
ちょうど夫が単身赴任から帰ってくるタイミングだったので、基礎ブロックの設置を依頼。
10個中8個を設置してくれました!
杭+水糸の設置に手間取り、最初は

1~2個しか無理かも
と弱気発言……。
そこで私が

まだ3日あるよね?
と圧を掛けたところ笑、8個まで仕上げてくれました。
土台・柱・垂木の組み立て(8月上旬)
・基礎に土台を設置
・大引きをはめ込み
・柱を立てて
・長い桁を打ち付け
・垂木を取り付け
墨付けミスもなく順調に進行!
3.6m材の運搬は一人でできたので、子どもたちの出番は少なめ。
さすがに長い桁2本を柱に打つ時だけは手伝ってもらいました。


屋根材・壁材の施工
屋根垂木は3.6mを半分に切っただけではマンションの駐車場にギリギリ掛かってしまうので、桁から10㎝程度の出にしました。
■ 屋根
・ポリカ波板(ブロンズ 6尺×6枚)
・専用ビス50本


■ 壁
・OSB合板
・胴縁
・外壁材(残り物をフル活用)
・水切り・軒天はホームセンターで購入(クリーム色)
家を建てた時と違い、断熱材・透湿防水シートは省略しています。
窓ガラス設置と工夫
正面にはトリプルガラスをはめ込み、両サイドはアクリルガラスをスライド丁番で開閉式にしました。
トリプルガラスはこの時に出たもの。

元々両サイドのアクリルガラスもはめ込みにする予定でしたが、施工が真夏だったため、

これどこも開かないと死ぬほど暑いぞ…
と考え直して。
普通の丁番だと耐久性が…と思い、スライド丁番にすることにしたのですが、、
スライド丁番にも種類があり悩みました。
全かぶせ、半かぶせ、インセット……
アクリルガラスを少し切ってインセットにしました。
でも取り付けてみるも問題が…
・風で勝手に開く/閉まる
・雨が吹き込む
その対策として
・取っ手に“猫のしっぽフック”を採用し、柱に回転するバーを取り付け、それをフックに引っ掛けて閉じた状態or開けっぱなしを固定
・余った水切りを防水テープで貼り、雨対策
これ、自分でもかなり良いアイデアだったと思います✨


床板の施工(9月上旬)
ホームセンターで見つけた「杉カフェ板(30mm厚)」を採用。
家の床も3cmパイン材なので、同じフロア釘で施工できました。


両サイド上部(三角部分)の工夫
当初はステンレス網戸で常時通気の予定でしたが、
OSB合板を丁番で吊って、必要に応じて開閉できるカバーに変更。
開ける時は物干し竿に引っ掛けて使います。

掛かった費用
| 品名 | 規格 | 店舗 | 単価 | 消費税 | 数量 | 金額 |
| 木材 | 90*90*3650 | 建材店 | 3,641 | 364 | 16 | 64,082 |
| 45*45*3650 | 建材店 | 740 | 74 | 9 | 7,326 | |
| 3650*90*45 | 建材店 | 2,020 | 202 | 1 | 2,222 | |
| OSB合板 | 9*910*2424 | 建材店 | 1,950 | 195 | 6 | 12,870 |
| 基礎ブロック | 60㎝(120/180)31kg | 建材店 | 2,100 | 210 | 10 | 23,100 |
| 胴縁 | 18*45*3650 | 建材店 | 300 | 30 | 10 | 3,300 |
| 小計 | 112,900 | |||||
| 波板 | 6尺*655+波板用ビス | DCM | 6 | 8,316 | ||
| 壁用トタン波板 | 4枚+役物 | DCM | 一式 | 19,929 | ||
| スライド丁番 | DCM | 492 | 4 | 1,968 | ||
| 床材 | 杉カフェ板 200*30*2000 | DCM | 1,280 | 128 | 11 | 15,488 |
| マグネットキャッチ | DCM | 2 | 654 | |||
| 丁番 | DCM | 491 | 2 | 981 | ||
| 掛け金 | DCM | 1 | 327 | |||
| 取っ手 | 猫フック | CanDo | 100 | 10 | 1 | 110 |
| ビス | 3.5*10mm | CanDo | 100 | 10 | 1 | 110 |
| 強力両面テープ | CanDo | 100 | 10 | 1 | 110 | |
| 合計 | 160,893 | |||||
元々あったもの=¥0
・トリプルガラス
・アクリルガラス
・外壁材
・ステンレス金網
・100mmビス(垂木、大引きの固定)
・フロアネイル(床板)
・防水テープ黒
・各種ビス
完成までのスケジュール
① 材料購入 5/21
② 刻み作業 5∼7月
③ 基礎ブロック 7月後半
④ 土台、大引 8月上旬
⑤ 柱、梁、垂木 8月上旬
⑥ 仮筋交い 8月上旬
⑦ ポリカ屋根 8月中旬
⑧ トリプルガラス 8月中旬
⑨ OSB、胴縁 8月下旬
⑩ 上部に金網 8月下旬
⑪ 外壁材 8月下旬
⑫ アクリル窓 9月上旬
⑬ 床材張り 9月上旬
まとめ:余り物を活かしつつ、16万円台でサンルーム完成!
完成してすぐ秋になり、暖かい時期はあっという間に過ぎてしまったのですが、
窓を両サイド開ければジーパンも早めに乾きました。
ほぼ外気温なので結露はしません。
一番良かったのはトリプルガラスが外側からは反射して中が見えにくいものなので、
日中マンション側からの視線が気にならないことです。
勝手口ドアもそのガラスなので見えないっちゃ見えないのすが、何となく今まではレースのカーテンを常時していました。
家に余っていた材料を使えたおかげで、
コストは約16万円に抑えつつ、実用性バッチリのサンルームが作れました!





コメント
サンルーム増築お疲れさまでした。かったーさんの技術は健在ですね。素晴らしい✨
墨付けや刻み、作業風景、もっと見たかったな~。以前からサンルームのお話は聞いてましたが、
本当に完成させたんですね。しかも16万円台なんてビックリですΣ(゚Д゚)
嫁@美里住建さま
余りの外壁材とガラス達のお陰で少なめの出費で済みました。
家の建て前の時に柱のほぞとかキツキツ過ぎて大工さん方にご迷惑お掛けしたのを思い出して、今回はやや大きめに彫りました笑
刻みの写真、少なかったですね!撮り忘れてました……